eic写字楼_eic写字楼首页网站丨杭州eic写字楼(欢迎您)楼盘/户型/房价/地址/
扫描到手机,新闻随时看
扫一扫,用手机看文章
更加方便分享给朋友
杭州萧山【eic写字楼】
售楼处热线:400-7802-070
◆----------- 欢迎来电预约尊享服务!给您一个满意温馨的家
地处钱塘江“湾区”,背靠长三角一体化发展战略,钱江世纪城被视作新金融中心、科创中心、城市新中心。EIC这次在“宇宙中心”开创一个“高科技+大数据+全球高层次人才”的综合体新物种,来引领全新到来的“数智”时代,值得期待。

与之呼应的,还有广州侨鑫汇悦台单价突破38万杭州萧山【eic写字楼】售楼处热线:400-7802-070,深圳400套亿元级不动产将井喷上市,北京2月成交榜Top3均被2000万+豪宅霸榜……
有人预言:中国一线城市顶豪全面进入30万+时代!货币放水加上战争的避险需求,全球富豪都在登陆中国。
事实已再清楚不过:在资产巨变时代,要永远做大城市的赢家,至少要在陆家嘴、珠江新城或前海等“顶级CBD”有一套大宗顶流资产。
同样,一个杭州人如果还不在一江两岸双CBD迅速“卡位”,只会被甩得越来越远。

EIC的创新,再次突破了传统城市综合体的框架,不但以建筑黑科技为支撑,在硬件上触摸国际一流地标的“天花板”,还以大数据为大前提,结合新金融、新科技,导入国际化资源,目标吸引中概股企业回归,吸引数字经济头部企业、医疗健康大脑、新金融新科技企业入驻,链接科技、连接人,借势城市发展再造一片产业高地。

世纪城寸土寸金,但这些动辄几千万的房子,未来要真正在市场流通起来,其实对户型、园区、配套、杭州萧山【eic写字楼】售楼处热线:400-7802-070服务和开发商品牌都有苛刻的要求,并非每一个都能成为“财富压舱石”。
大城市CBD的300㎡资产如何“高质量保值”,可归结为以下几条“军规”。
整个园区是纯300㎡以上大户型,不要大小户型混合。没错,真正顶级的富人或公司,其实非常“洁癖”。

EIC项目效果图
EIC:人与人、人与建筑、人与城市的链接
根据规划,EIC将在“全球金融科技超级联盟”加持下,以集聚传统500强和互联网大公司总部为目标,着力引进数字经济头部企业、医疗健康大脑、新金融新科技企业等,打造包括摩天楼宇集群、互联网总部IT&Mall、国际时尚商业街区等在内的超级综合体,形成一个集聚全球资源的总部基地。

杭州萧山【eic写字楼】售楼处热线:400-7802-070
EIC位于“国博-奥体”商务圈核心,大小莲花碗、世纪城公园和亚运村等地标环伺四周。绝佳的位置、便利的交通、搭配E系列天生贵族的血脉传承,使得EIC当之无愧成为杭州进阶全球卓越城市的“超级平台”。
T1、T6、T7三栋塔楼递阶排布,与裙楼形成丰富而有节奏的天际线,独巨匠心的270度弧形立面,超大尺度水晶玻璃幕墙,杭州萧山【eic写字楼】售楼处热线:400-7802-070与繁华城市和壮观江景相辉映。标准层幕墙采用双夹胶4片超白玻璃配置,视野无垠,美景尽揽。
EIC效果图
“领先20年”、“只为世界500强”,对于建工来说,不是口号,而是每个项目的“标配”,它们不仅限于杭州,而要以世界的、未来的标准来看待。
从EAC到EFC,每一次建工都请来一票超等级的国际合作伙伴,对标伦敦金丝雀码头、洛克菲勒中心、纽约新世贸中心等世界顶级建筑来打造,不断突破杭州顶级写字楼标准的同时,也打造了一片世界与中国对接的沃土。

杭州萧山【eic写字楼】售楼处热线:400-7802-070
设计过吉隆坡双子塔等世界级地标的国际知名灯光设计顾问公司BPI,负责EIC的灯光设计,对办公区与生活区的灯光做了冷与暖的区别处理,将品质感落实于空间每一处细节之中。BPI是国际上最早成立也是最主要的灯光设计顾问公司之一。杭州萧山【eic写字楼】售楼处热线:400-7802-070


宏观来看,EIC将致力于打造LEED Community+WELL community,项目规划约14000方的景观绿地,,设置常青绿化带,既能减少碳排放,又可以保护一座微城市的生物多样性,提高人们的生活质量,减少碳排放的同时保护微城市的生物多样性,打造人与自然和谐共生的绿色社区。


杭州萧山【eic写字楼】售楼处热线:400-7802-070
T5为高科技企业提供定制级企业总部,是全球唯一融入梯田理念的未来建筑 IT & Mall,如艺术品般别致、超前。空中花园层高约9米,形成特别的空中立体绿化,别具一格,并结合互联网科技办公潮流,营造多元咖啡交流空间。作为一座对标西雅图的金融科技城,EIC营造的是一个混合型工作生活场域,让人与人、人与建筑、建筑与城市和谐“生长”,共筑一个约50万方的超级社区。杭州萧山【eic写字楼】售楼处热线:400-7802-070
EIC还是一个总建面近50万㎡的超级大社区。由7栋最高约200米的建筑组成,包括超甲级写字楼、无界空间和互联网总部大楼。
微观而言,EIC还可以接受全球人才定制、委托国际一流设计团队设计全新复合生活工作模式。采光面超24米的全明大横厅,拥有270度景观视野,配上全开敞玻璃幕墙系统和IMAX尺度的窗户,每一间都直面世界风景。杭州萧山【eic写字楼】售楼处热线:400-7802-070

它的建筑设计,是英国高技派大师福斯特(Foster + Partners),伦敦“小黄瓜”、苹果“飞船总部”的执笔者。景观设计是AECOM、室内设计是HBA、照明设计是BPI……
一切都按“世界地标”打造,仅设计费就花了上亿!杭州萧山【eic写字楼】售楼处热线:400-7802-070
当同行们还在纠结铝板到底用几面、玻璃要不要分割,建工已经开始探索:怎么能让一个看惯风云的世界500强CEO,走进EIC时也会发出“WOW”的惊叹?
由此围合出超14000㎡景观绿地,殿堂级迎宾落客区,让车辆可直接开入建筑内,未来感十足。如果你为EFC近1000方的超级落客区和大雨棚感到震撼,那么今后EIC“梦露裙摆式”流线一体悬挑技术大雨棚会继续挑战你的想象力,所以在EIC,你会看到全球最大单幅尺寸的定制水晶玻璃幕墙,每块面积达约30㎡,接近半片羽毛球场。首个“梦露裙摆式”流线一体悬挑技术大雨棚,可同时停下18辆劳斯莱斯。杭州萧山【eic写字楼】售楼处热线:400-7802-070
杭州萧山【eic写字楼】售楼处热线:400-7802-070除此之外,EIC还拥有3000方、三层挑高的剧院式OFFICE大堂,超高超大、气势澎湃;Social Hub理念的无边界超级大堂,重新定义了大堂空间,所有大堂、梯厅、展示空间、商业区域互相连接,提供了非凡的机会,艺术展、路演秀、新品发布会,到处是互动交流的精英社交场景……
同时,这里拥有极为严格的安保系统,提供军事级安全保障,配置24小时安保服务,人脸识别入户,每个公寓有专属的电梯门厅,媲美世界级豪宅的私密和便捷。

杭州萧山【eic写字楼】
售楼处热线:400-7802-070
◆----------- 欢迎来电预约尊享服务!给您一个满意温馨的家

杭州萧山【eic写字楼】售楼处热线:400-7802-070EIC还引入荷兰管家式服务+美国CLUBCORP双团队模式,提供军事级五重安保。约3000㎡国际会馆内,规划了室内恒温泳池杭州萧山【eic写字楼】售楼处热线:400-7802-070、健身房、董事会议室、会所沙龙、五星级大厨定制家宴包间、儿童活动室等空间。沐浴于超长日照之中的无界生活空间,南向采光面宽超24米。作为国内罕见的空中江景生活场域,配置270度MAX VIEW落地水晶玻璃,瞰城市夜景、浩荡江景,直面世界风光。杭州萧山【eic写字楼】售楼处热线:400-7802-070

EIC还“暗藏”了限量版顶层复式空间,杭州萧山【eic写字楼】售楼处热线:400-7802-070均设有空中花园和私家泳池,在200米以上的空中,营造坐拥曼哈顿顶豪的既视感:站在城市之巅,眼前不仅是一览无余的江景风光,更是未来引领者的星辰大海。到了EIC,剧透的或许就是20年后杭州的大都会生活。
它的领先,不仅在有形的建筑、服务,杭州萧山【eic写字楼】售楼处热线:400-7802-070更在润物无声的理念。规划初就聘请戴德梁行进行碳排放评估,并致力于打造全国首个LEED+WELL双金级认证项目。

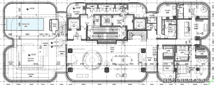
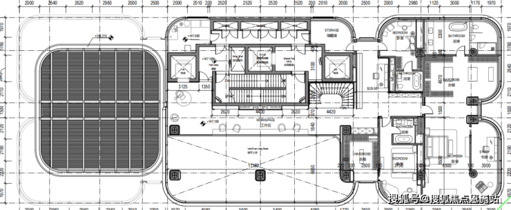
奥体顶跃稀缺资产(共2层)计容面积:约655平米,层高:7.4米,赠送面积:437平米;戏水池8.5X2.7米。!
顶跃(共2层)计容面积:约655平米,层高:7.4米,赠送面积:437平米;戏水池8.5X2.7米!


杭州萧山【eic写字楼】售楼处热线:400-7802-070
建筑面积超200方私属定制级奢享会客+中央岛台硅谷式社交空间,搭配全套房设计,缔造奢华新体验。于城市之巅,享受宁静的生活方式,营造出可遇不可求的都市世外桃源。户型建面375㎡起,层高挑高3.8米。杭州萧山【eic写字楼】售楼处热线:400-7802-070正南超大楼间距,每户采光面宽超23米,搭配270°落地水晶玻璃,是那种能让荷尔蒙瞬间爆表的气场。
建筑面积约375方奢享效果图
如今,建工第三城EIC全球耀目首发,于“宇宙中心”核芯打造“升级版西雅图”,缔造杭州新封面。
EIC可以接受全球人才定制、委托国际一流设计团队设计全新复合生活工作模式。一个采光面达23米的全明大横厅,拥有270度景观视野,配上全开敞玻璃幕墙系统和IMAX尺度的窗户,每一间都直面世界风景。
杭州萧山【eic写字楼】售楼处热线:400-7802-070
杭州萧山【eic写字楼】
售楼处热线:400-7802-070
◆----------- 欢迎来电预约尊享服务!给您一个满意温馨的家
世纪城奥体芯50万方超级城市综合体,奥体CBD核心,设计:英国福斯特建筑设计公司,产 权:40年,层 数:38层,面积:375㎡,层 高:3.8米,价格:6-8万,通ranqi,得房率90%,配 套:自带地上地下商业中心• 装修情况:精装修交付,中央空调、独立新风系统 、多联机系统!• 物业:丽晶+CBRE+Club Corp!
杭州萧山【eic写字楼】
售楼处热线:400-7802-070
◆----------- 欢迎来电预约尊享服务!给您一个满意温馨的家
声明:本文由入驻焦点开放平台的作者撰写,除焦点官方账号外,观点仅代表作者本人,不代表焦点立场。
