绿发浦江园
绿发浦江园售楼处电话:400-788-2939(销售中心)☎
目前仅接待预约客户,看房请拨打400电话提前预约销售
预计6月开展厅,8月开样板间,9月入市!黄浦滨江 即将面世!

直线距离江面仅约350米
黄浦滨江一线江景豪宅
预计推出约143-195㎡3-4房
高层瞰江住宅
预计6月开放展厅
8月开放样板间
9月左右入市!

根据规划, 项目共404套商品房,主推建面约143-195㎡的滨江高层,主力户型有建面约143㎡3房,共84套;建面约168㎡3房,共206套;建面约195㎡4房,共114套。

绿发浦江园
绿发浦江园售楼处电话:400-788-2939(销售中心)☎
目前仅接待预约客户,看房请拨打400电话提前预约销售
户型图如下:(过程稿仅供参考,最终以实际为准)
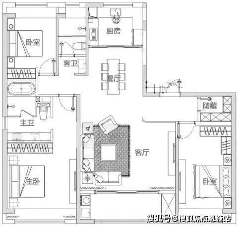
A户型 建面约143㎡3房边套

B户型 建面约143㎡3房中间套

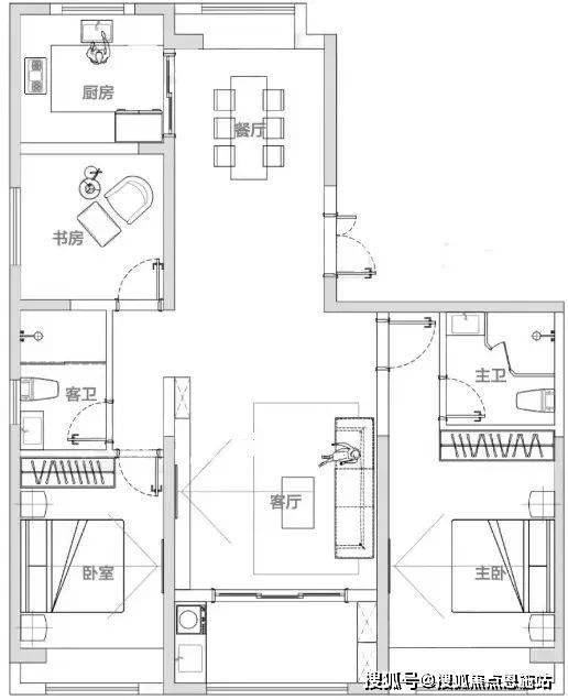
C户型 建面约168㎡3房边套

C户型 建面约168㎡3房中间套

绿发浦江园
绿发浦江园售楼处电话:400-788-2939(销售中心)☎
目前仅接待预约客户,看房请拨打400电话提前预约销售
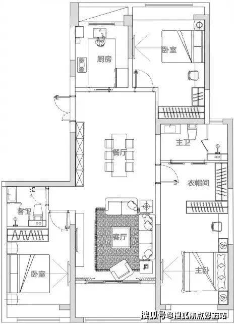
E户型 建面约168㎡4房边套

F户型 建面约195㎡4房


绿发浦江园
绿发浦江园售楼处电话:400-788-2939(销售中心)☎
目前仅接待预约客户,看房请拨打400电话提前预约销售


绿发浦江园售楼处电话:400-788-2939打造的滨江高层住宅将拟建设7幢17-31F高层住宅、1幢物业管理用房及其他配套设施。
项目配置约1200㎡集恒温泳池、健身、私宴、会客、观影5大功能于一体的私享会所,园林总面积约2.3万㎡,集合6大主题的景观空间,近百米尺度景观大门,唯此筑就绿色健康、宜居宜业的城市典范住宅。

项目总建面约140214㎡,容积率2.89,绿地率35%,完全人车分流,车位比1:1.2,封阳台。

项目地块位于黄浦区的世博滨江板块,紧邻内环高架中山南路,距离黄浦江仅450米左右。南向瞰江方向视野开阔,没有高大建筑物阻挡, 和对岸的保利世博项目可以隔江对望了。

绿发浦江园
绿发浦江园售楼处电话:400-788-2939(销售中心)☎
目前仅接待预约客户,看房请拨打400电话提前预约销售
项目计划的开竣工时间为2023年12月1日-2026年5月18日。

根据公开资料,该地块是中国绿发通过股权转让的方式从上海地产手中摘得。
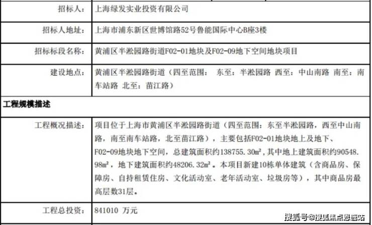
绿发浦江园售楼处电话:400-788-2939☎,地块规划建造7栋17-31层不等的住宅楼宇(包含商品房、保障房、自持租赁住房),和其他辅助用房3栋。

让我们来看看该项目的大致规划细节。

总建筑面积约138755.30平方米,地上建筑面积约90548.98平方米,地下建筑面积约48206.32平方米。工程总投资84.101亿元。
项目计划的开竣工时间为2023年12月1日-2026年5月18日。

让我们来看看现场探访,项目虽然是在黄浦区的市中心,但有点闹中取静的感觉,南向还有部分当年的世博会场馆,城市界面舒适安逸,滨江位置还有沿岸步道适合休闲散步。


绿发浦江园
绿发浦江园售楼处电话:400-788-2939(销售中心)☎
目前仅接待预约客户,看房请拨打400电话提前预约销售


在2023年4月19日上海黄浦城市更新建设发展有限公司在上海产交所转让黄浦两大超级豪宅地块的股权转让正式成交,
中国绿发及其旗下的地产开发平台鲁能集团参与竞标,并以底价竞得两家公司项目公司股权,间接夺得两幅优质豪宅地块。
上海新乔东企业发展有限公司90%股权,720,975.803519万元
上海新淞原企业发展有限公司100%股权,608,024.034321万元
两个地块的转让起始价格合计约132.9亿元

其实早在2022年11月,针对黄浦滨江这一部分地块,黄浦区人民政府和上海市规划资源局联合发布了《上海市世博会地区文化博览区控制性详细规划(HP-031风貌保护街坊保护规划)(公众参与规划草案)》就有明确的规划!
其中,明确提出形成三条平行岸线的功能带:一是滨江公共活动功能带,延续滨江贯通需求,增加游憩、休闲、展示和运动等配套设施,集聚最活跃的公共活动功能;二是文化功能集聚带,核心文博设施引领,配套布置文化、商业、休闲等活动功能;三是综合功能服务带,布置文化产业衍生的商务、商业、居住等功能,强调功能的立体复合。

【周边商圈】
周边4公里范围内覆盖上海陆家嘴商圈、南京路商圈、打浦桥商圈、外滩、城隍庙等城市地标,享受上海最顶级配套资源。

【交通方面】
交通方面:距离4号线南浦大桥站仅约350米,距离8号线西藏南路站仅约600米,周围比邻内环高架,南北高架等快速路。

【教育方面】
周围教育资源成熟,大同中学、上外黄浦外国语小学、大境中学等优质教育资源环伺(新房不承诺学区,以最终官方公示为准);
【医疗配套】
周围临近知名的第九人民医院、交大儿童医学中心,黄浦中西医结合医院等多家医院相聚不远,极为便利。
直线距离江面仅约350米
黄浦滨江一线江景豪宅
「绿发浦江园售楼处电话:400-876-7710☎」
预计推出约143-195㎡3-4房
高层瞰江住宅
预计6月开放展厅
8月开放样板间
9月左右入市!
预计6月开展厅,8月开样板间,9月入市!即将面世!
绿发浦江园
绿发浦江园售楼处电话:400-788-2939(销售中心)☎
目前仅接待预约客户,看房请拨打400电话提前预约销售