花桥明月璟辰苑丨明月璟辰苑指定网站丨明月璟辰苑售楼处丨户型房价-楼盘详情
扫描到手机,新闻随时看
扫一扫,用手机看文章
更加方便分享给朋友
江苏花桥「明月璟辰苑」
售楼处电话:400-1788-336
如有问题欢迎来电咨询,来电即可享受买房优惠!预约来电尊享购房优惠,可预约案场内部销售人员,专业一对一热情服务,让您用专业眼光去买房。

画船听雨,
闲梦梅熟,
人语断桥边的江南,
今生有幸江南去,纵是梦里不言归的姑苏。

丨 项目区位
本案位于昆山市花桥镇——一个依托于上海、苏州和昆山,而迅速发展的江南小镇,地处金捷路南侧,远创路西侧,交通便捷,配套齐全。

▲ 明月璟辰苑区位分析
▲ 明月璟辰苑区位鸟瞰
▲ 示范区庭院鸟瞰


▲ 示范区入口

▏昆山印象
昆山,一座富有文化和艺术底蕴的江南水乡。
闲暇时游历园林,漫“步”在江南烟雨,
点上一壶茶,再细“品” 昆曲悠扬,
这是昆山清雅灵秀的气韵,是对于昆韵美的阐释。


翻飞起舞,一柄“扇”,一俯一仰,一声叹;
一步一景,皆为画,一曲一折,皆为“园”。


静谧的风拂遍整个江南,昆曲为我们演绎的是一场场悲欢离合,巧夺天工的园林艺术诉说着小桥流水人家的悠远。枯藤老树昏鸦的悲凉,有情人终成眷属的欢喜,就在这无数的瞬间,照亮了历史长河,折射出的柔和夹杂着古典的风味,诉说着几千年来不变的江南。

▲ 示范区入口


▲ 示范区庭院
▲ 示范区建筑立面

整个场地布局灵感来源于苏州园林、江南水乡。
沿街面打造沉浸式的景观界面,外向式布局凸显仪式感。示范区入口营造开合有致的空间,门扉半掩更是是江南婉约美的体现。庭院通过大面积水景打造开阔的空间,体现水乡特色, 营造豁然开朗的视觉体验。
▲ 示范区庭院鸟瞰

▲ 总图布局

▲ 形体生成







昆曲无他,得一美字。纵观昆曲六百年的美之传承,“扇”一奇也。苏扇不仅存在于昆山人们的生活中,而且作为中国传统手工艺品之一,它以历史悠久、制作精巧著称。试想,文人墨客在青砖碧瓦下,折扇轻摇焚香烹茗,谈古论今,这是一把扇子上流转的苏式情调。
建筑造型取意苏扇,序列有致上疏下密,虚实相辅相成,如扇如风轻盈有力。
丨 序列有致——扇骨
苏扇重在骨,选料取精用宏,上等的扇骨匀致精巧,光洁如玉。

建筑一层立面采用超白玻和圆弧杆件有序排列,并加设灯带,达到玲珑通透的立面效果。

参照扇骨均匀巧妙的的排列方式,使一层犹如打开的扇骨。
▏序列有致——扇面
扇面采用花纹清晰的棉料宣纸,打开折扇如起舞,灵动飘逸。

建筑二层立面采用半透明的双层U玻进行横向拼接,形成舒展轻盈的立面效果。

提取扇面竖向匀质排列的肌理应用在建筑上层。
丨 上实下虚
苏扇主要由轻盈的扇面和坚韧的扇骨组成,扇面舒展宽阔,扇骨凌厉挺拔,如筋如骨。因此建筑主体采用上宽下窄、上实下虚的形体组合方式。


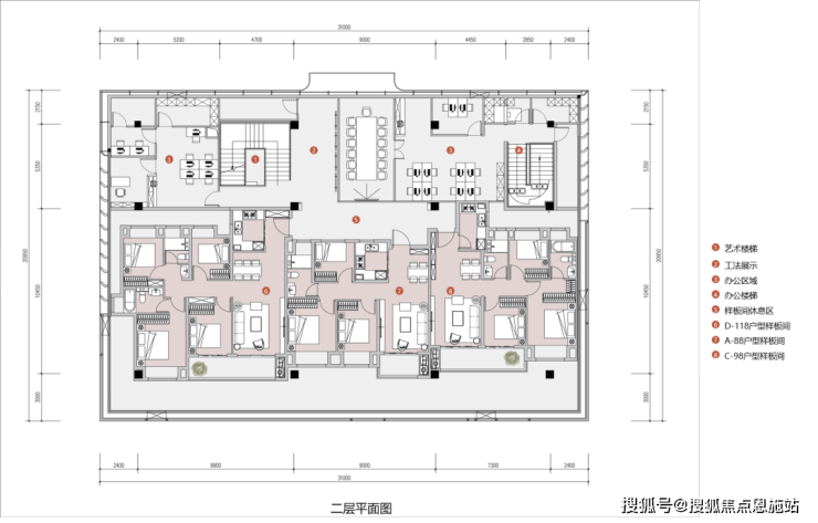
售楼处首层主要为接待洽谈空间,二层为样板房展示和办公空间。由入口门头进入接待大厅,然后经过展示区到达大厅(沙盘区域、洽谈区,水吧区、儿童游乐区)经艺术楼梯可到达二层样板间,签约室则位于大厅的一侧。

▲ 功能分区

▲ 人行流线


▲ 平面图
▲ 剖面图


丨 材料细节
一层竖向杆件与格栅以近竹色为主,檐部采用仿铜金属格栅和铝板线脚,设置米黄色灯带,渲染温润光泽。

二层采用双层白色喷砂磨砂U玻和仿铜金属格栅,似透非透。

一层的立面材料主要为超白玻和仿铜铝板,二层为双层白色喷砂U玻和仿铜金属格栅。
▲ 材质索引
丨 效果图实景图对比
▲ 效果图
▲ 实景图

每个人心里都有一座城,一城一味,一城一曲,一城一个故事。
携一柄伞,步入园林深处;
煮一杯茶,静品昆曲悠扬;
执一把扇,细酌百年春秋。
江苏花桥「明月璟辰苑」
售楼处电话:400-1788-336
如有问题欢迎来电咨询,来电即可享受买房优惠!预约来电尊享购房优惠,可预约案场内部销售人员,专业一对一热情服务,让您用专业眼光去买房。
声明:本文由入驻焦点开放平台的作者撰写,除焦点官方账号外,观点仅代表作者本人,不代表焦点立场。
