杭州余杭未来星宸
售楼处电话:400-7652-669
案场限流 看房提前来电预约登记
<3#独栋总部办公>
-FUTERE-START-未来科技城·永福地铁TOD多元商业综合体稀缺4.79米层高·难得准现房写字楼

未来星宸
浙江省杭州市余杭区余杭塘路与聚橙路交口(永福地铁站E口步行80米)

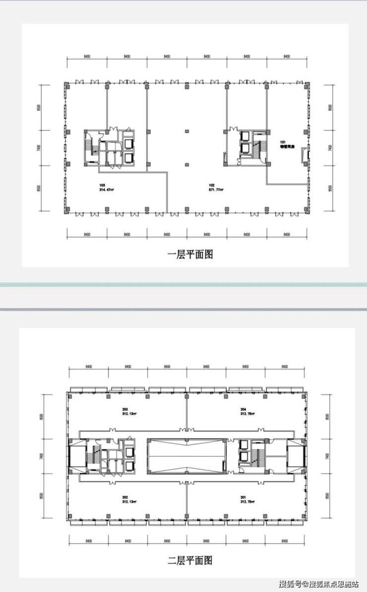
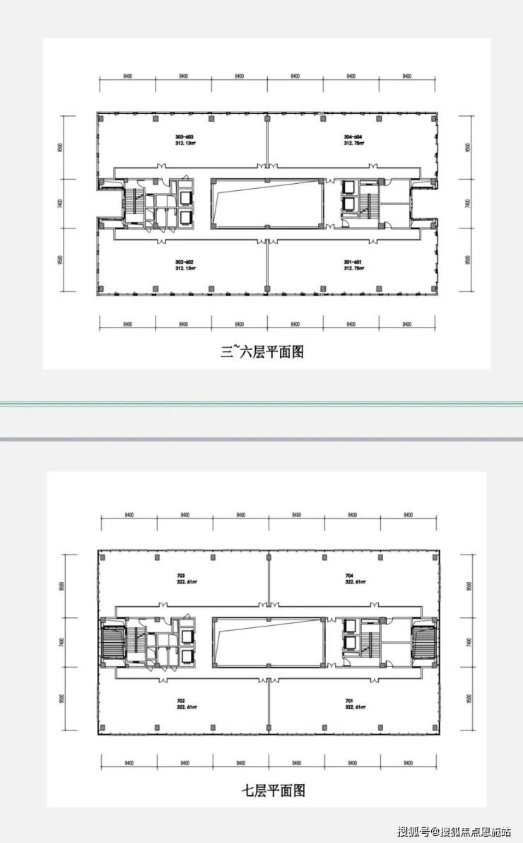
【3#楼独栋企业总部办公】概况
【整栋面积】7171方(其中写字楼面积6284.76方 ,商铺886.24方)
【单层面积】约1250 方
【产 品】甲级写字楼
【产 权】40年产权
【层 数】7层 (1层为商铺)
【标准层】约4.79米
【物业公司】中宙物业
【梯户比】4梯4户
【交付时间】预计2023年8月(准现房)
【外立面】玻璃幕墙+铝板
【区域价值】
未来科技城核心 与世界巨头为邻项目位于杭州“第三中心”——未来科技城核心,为 地铁5号线永福站地铁上盖综合体项目,北临余杭塘路,南临联创街,西临聚橙路,东临新桥路。
未来科技城作为新进的“杭州第三中心”,比肩武林和钱江新城的新中心。这里不仅是杭州城西科创大走廊产业聚集的创新极核,更是杭州高净值人群及独角兽企业的聚集地,是杭州走向世界的时代引擎。


项目南面约 800米为阿里巴巴集团全球总部,西侧约3km为欧美金融城,板块内聚集了像菜鸟网络、字节跳动、水晶光电、 OPPO等众多独角兽企业和全球巨头总部。大量龙头企业的涌入以及创新资源的有效集聚,使得板块内拥有着超强的产业规模和聚焦度。
【项目价值】
未来新主场:多元TOD综合体项目项目北面紧邻余杭塘路,与永福地铁出口DEF零距离,是唯一同时拥有3个地铁出入口的写字楼项目,不管对于员工上下班还是商务出行,都将拥有极大的出行便利;
项目总建筑面积约142715㎡,地上地下整体规划,综合开发, 以“总部、生态、连接”三大设计理念,打造成一个集商务、商业、文化、教育、娱乐、餐饮等于一体的多元TOD综合体项目。涵盖了科创文创产业创新区、Block体验式精品街区、时尚生活邻里中心、潮趣生活景观广场。

稀缺4.79米准现房写字楼
产品拥有约4.79米稀缺奢阔层高,突破式的层高设计,使得装修风格可更加灵活多变,大气恢弘的立体空间,是企业形象气质达到更高一层领域的表现。约4.79米层高还可做隔层设计,打造成为您企业的展示空间、仓储空间、休憩空间等、实现多重办公可能。同时项目还拥有 极致的户型设计,方正的户型、无柱设计,都将带来更高的空间利用率,使企业轻松分割布局随心设计,不浪费每一寸空间。


【独栋总部办公亮点】
『独栋专属冠名权』:3#楼独栋总部办公享专属冠名权, 为企业定制专属尊崇。不仅是一方办公用地,更是企业形象、实力的第一展示台;

『专属形象与独立空间打造』:3#楼独栋总部办公一楼可定制化打造企业大堂及第一展示面,提升企业形象 ;标准层约4.79 米的挑高空间,根据每一个企业的个性化需求。员工区域、会议区域、独立总裁室、休闲空间等企业各个功能空间的独立设计,功能分布明确且不影响协同作战, 实现零时差功能设置;
『准现房 预计2023年8月即可交付』:“现”象已成,价值眼见为实。项目虽然准现房,但是基本已经实景呈现,可以规避了不能准时交付的风险,同时也缩短了物业从购置到使用的周期,所见即所得,省去等待时间,更符合成本核算原理,使企业利益最大化 。

【独栋3号楼标准层示意图】



杭州余杭未来星宸
售楼处电话:400-7652-669
案场限流 看房提前来电预约登记
温馨提示:如有问题欢迎来电咨询,可预约案场内部销售人员,专业一对一热情服务,让您用专业眼光去买房